| Adres: | Genenberg 19, 5872 AL Broekhuizen |
| Prijs | € 35.500,- v.o.n. |
| Type object | Woonhuis, stacaravan, vrijstaande woning |
| Perceeloppervlakte | 2.891 m² |
| Woonoppervlakte | 36 m² |
| Aanvaarding | Direct |
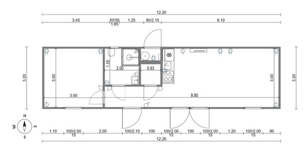
TE Koop : Nieuwe Mobiele woning ,bestaande uit woonkamer met tuindeuren ,inbouwkeuken met vaatwasser ,koelkast , kookplaat, afzuigkap ,een slaapkamer ,badkamer met douche ,toilet en wastafel totaal in perfecte staat , Prijs is Netto (Verkoper wil voor 1500 euro inclusief BTW de mobiele woning brengen op een adres in Europa .
| Referentienummer | 05380 |
| Vraagprijs | € 35.500,- v.o.n. |
| Inrichting | Niet gestoffeerd |
| Inrichting | Niet gemeubileerd |
| Aanvaarding | Direct |
| Laatste wijziging | Donderdag 19 maart 2026 |
| Type object | Woonhuis, stacaravan, vrijstaande woning |
| Soort bouw | Bestaande bouw |
| Bouwperiode | 2025 |
| Perceeloppervlakte | 2.891 m² |
| Woonoppervlakte | 36 m² |
| Inhoud | 94 m³ |
| Aantal bouwlagen | 1 |
| Aantal kamers | 2 (waarvan 1 slaapkamer) |
| Aantal badkamers | 1 |
| Ligging | Zelfstandig |
| Heeft airco | Ja |
| Kadastrale aanduiding | Gemeente niet gevonden f 709 |
| Perceeloppervlakte | 2.891 m² |
| Omvang | Geheel perceel |
| Eigendomsituatie | Eigen grond |